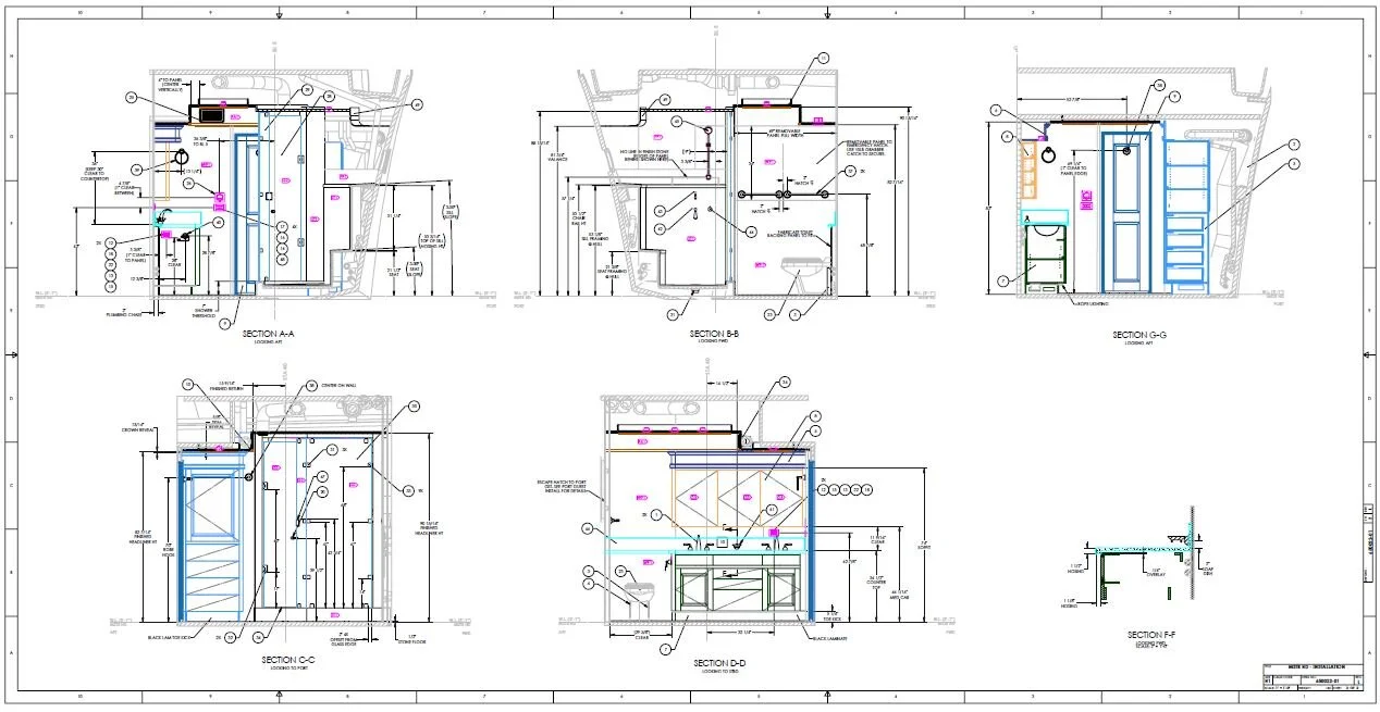
38M Motor Yacht
Builder: Westport Yachts
Project: Assist in development of 38M production yacht from concept to construction.
Year(s): 2014 - 2016
Services provided by BerkenG:
Project Management
Product Development
Design Engineering (Millwork, Systems, Structure)
Product Documentation (3D Modeling, Construction, Installation Drawings, Bill of Materials)
Product Lifecycle Management
