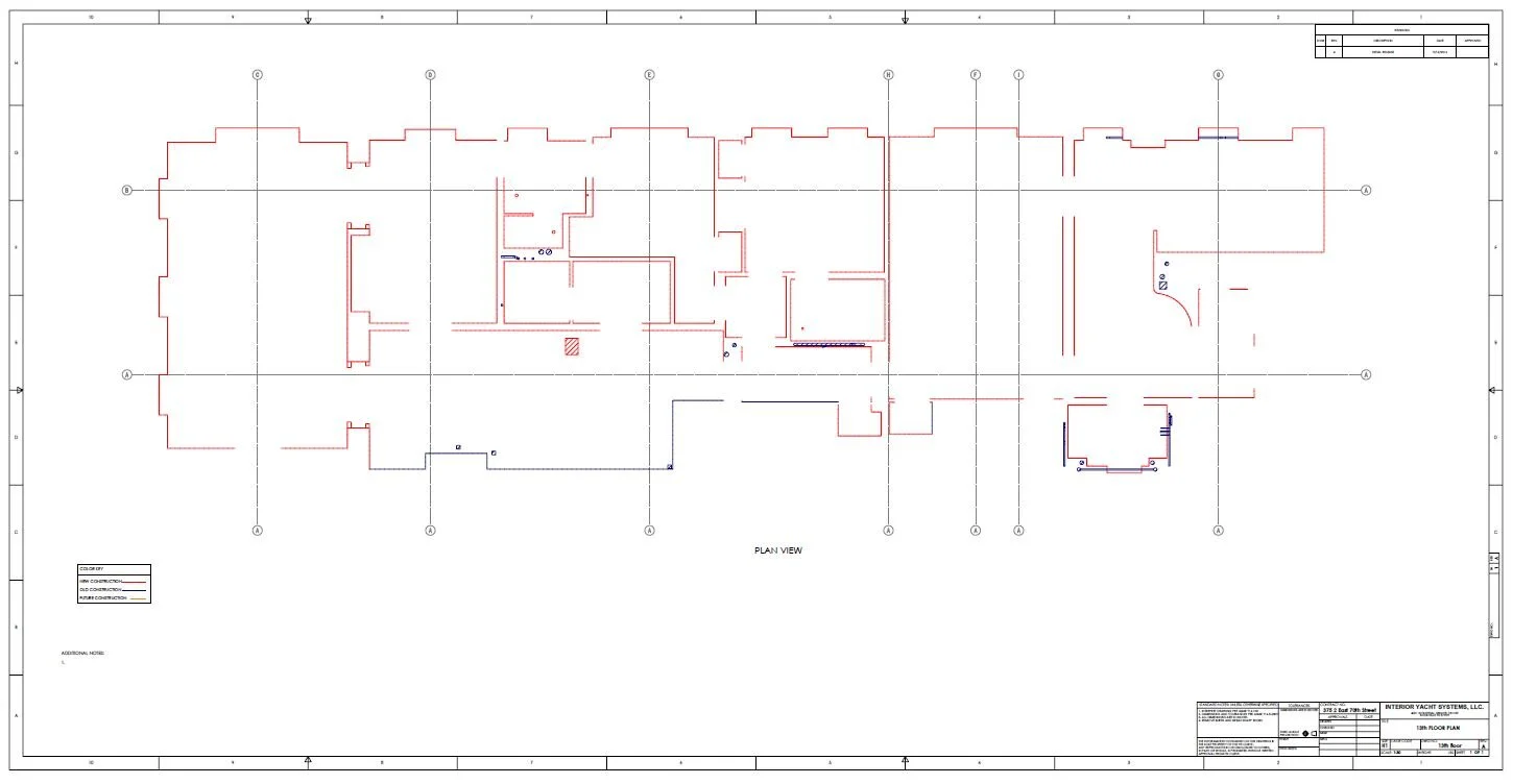
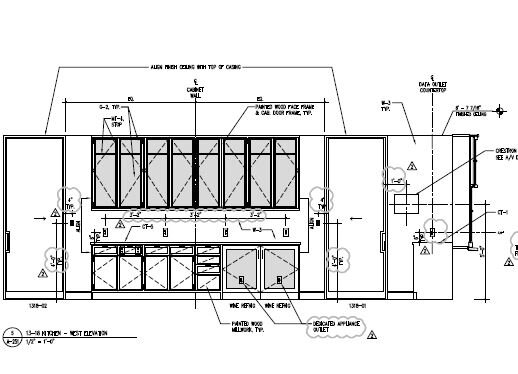
5th Avenue, NYC Apartment
Builder: Merritt Woodwork
Project: Develop 3D documentation for existing structure, development new architectural millwork
Year(s): 2014
Services provided by BerkenG:
Measured and documented existing structure for 13th and 14th floor penthouse
Provided existing structure documentation (3D Modeling, 2D Plans and Elevations) to builder for architectural millwork and cabinetry development.
