68' Sport-Fishing Yacht
Builder: American Custom Yachts
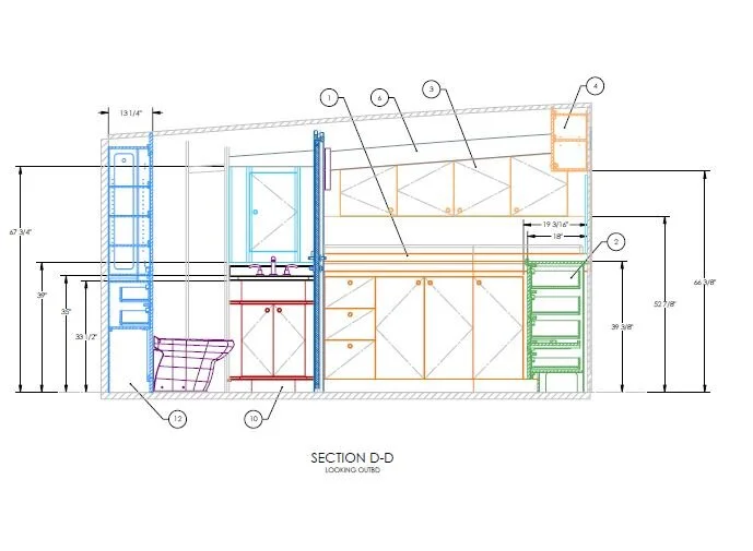
Project: Product development for Architectural Millwork.
Year(s): 2017
Services provided by BerkenG:
Measured and documented existing vessel to create model data to develop interior
Product Development (millwork and cabinets)
Product Documentation (3D Modeling, Construction and Installation Drawings)
