Park Avenue, NYC Apartment
Builder: Merritt Woodwork
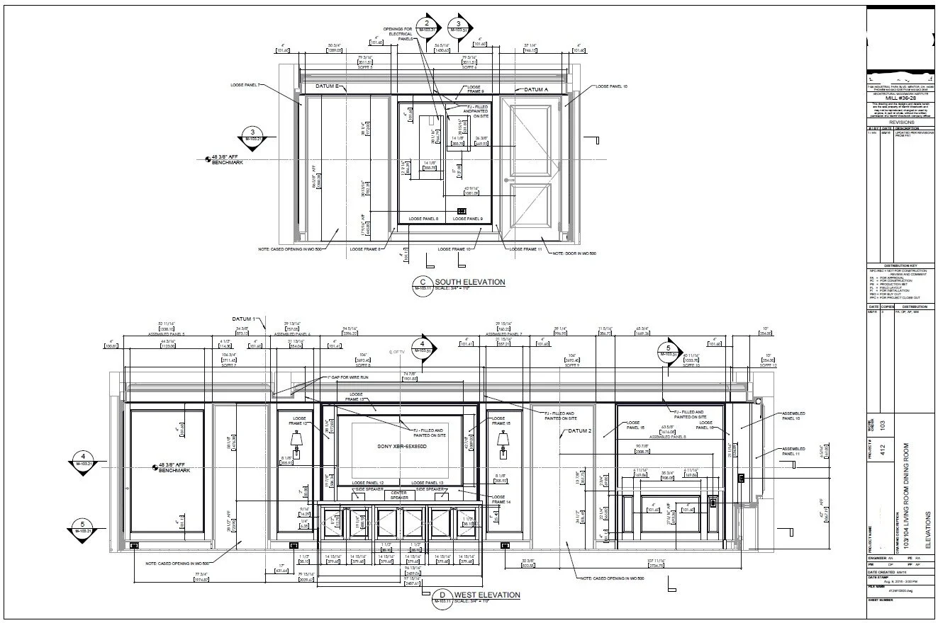
Project: Develop 3D documentation for existing structure
Year(s): 2016 - 2017
Services provided by BerkenG:
Measured and documented existing structure
Developed all architectural millwork and cabinetry
Product Documentation (3D Modeling, 2D Plans and Elevations)
All documentation was shared with sub-contractors for construction offsite
