Stadium Scoreboard
Builder: Jones Sign Co.
Project: Tom Benson Stadium
Year(s): 2021
Services provided by BerkenG:
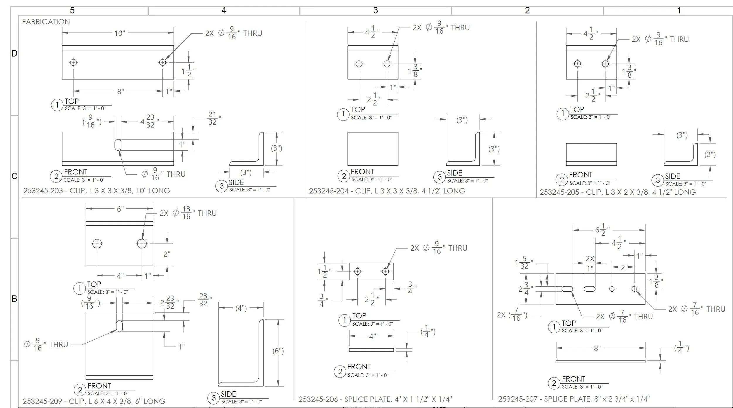
Develop Fabrication, Assembly, and Installation Drawings.
Bill of Materials.
Your Custom Text Here
Builder: Jones Sign Co.
Project: Tom Benson Stadium
Year(s): 2021
Services provided by BerkenG:
Develop Fabrication, Assembly, and Installation Drawings.
Bill of Materials.