Stadium Façade
Builder: Jones Sign Co.
Project: Columbus Crew Stadium
Year(s): 2020
Services provided by BerkenG:
Product Development
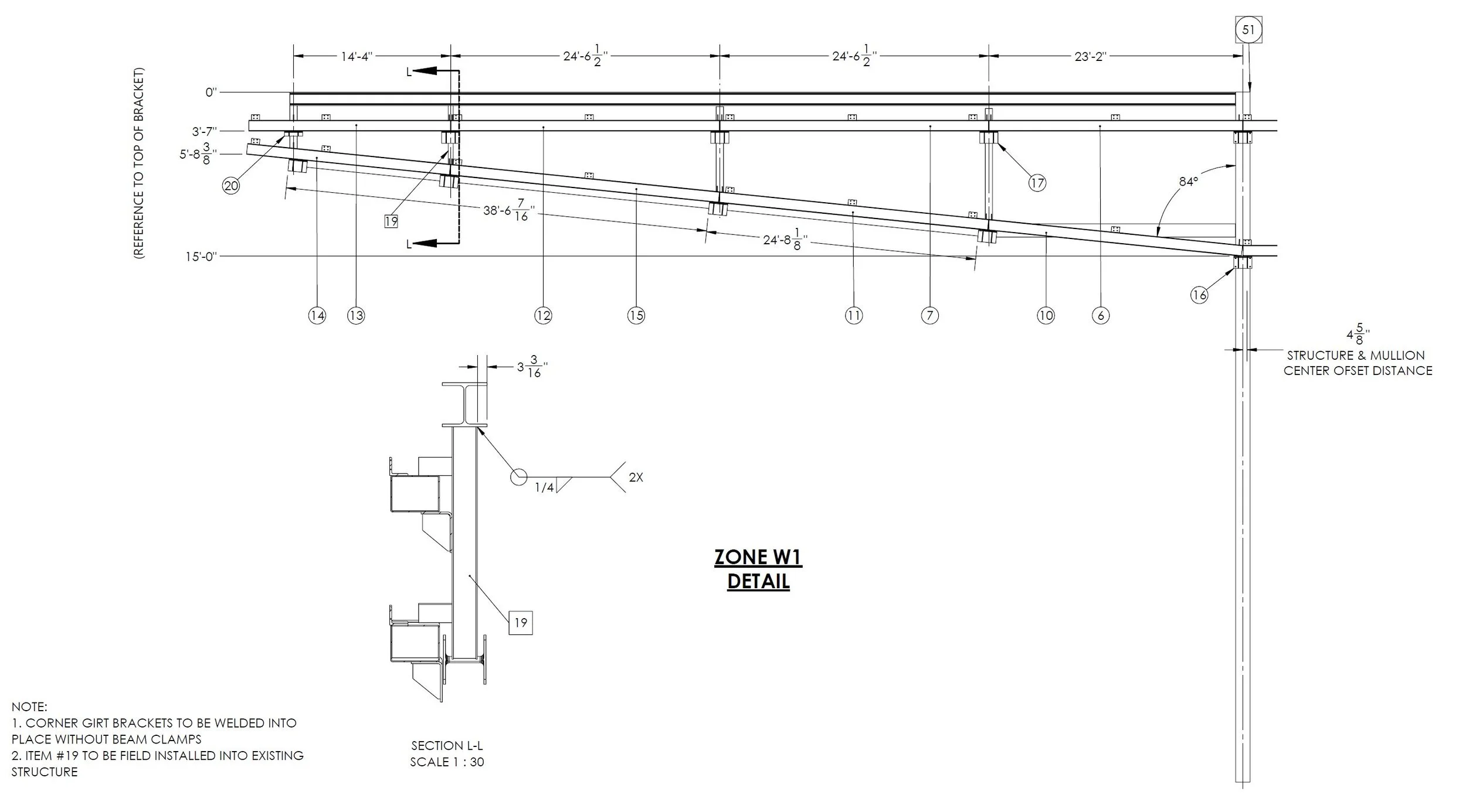
Model Façade per Architect and Engineering Specifications.
Develop Fabrication, Assembly, and Installation Drawings.
